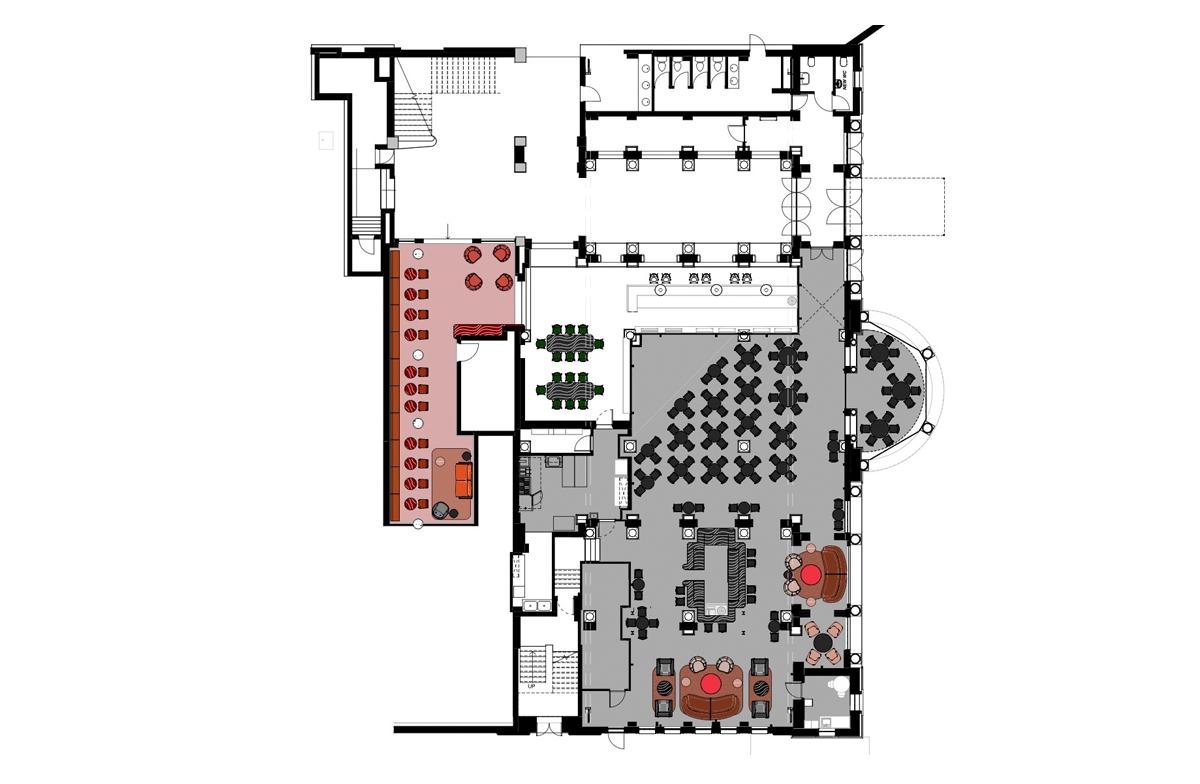
The Johannesburg Market opened in 1913 and is of heritage significance to the history of the city. half-moon shaped building, with domed-topped corner columns, and an unrestricted interior space of over 200m in length and 37m in width and the largest 3 pin arch was an engineering feat of its times. The space for the Market Theatre was formed within the eastern portion of the old market building in 1975.
The project comprised the updating of the Barney Simon experimental theatre area to allow for multiple seating and production configurations.
The renovation and refurbishment intent for the bar, foyers and event spaces was to make functional , flexible spaces that are bold and unique to its architectural history and it’s cultural significance, while fashioning a new energy fitting this historic and important cultural institution.












